La Rose des Sables, 17, rue des Remparts – Architecte Pierre ESPOT



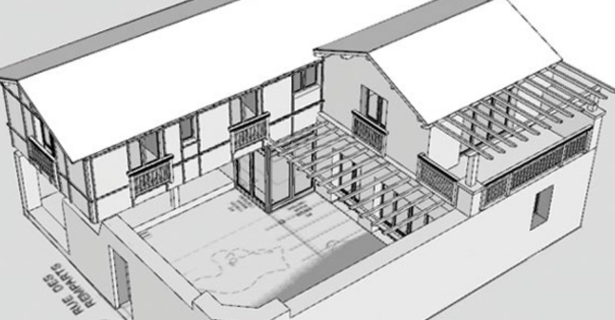
À l’angle des rues des Remparts et du Va’a, la parcelle était un enchevêtrement de bâti ancien et d’ajouts successifs, enfermée derrière son vieux mur. L’architecte l’a d’abord vidée pour laisser naître un jardin secret.
Au cœur de la propriété renaît ainsi un jardin caché, havre végétal sur lequel s’ouvre le rez-de-chaussée, tandis que les chambres à l’étage profitent de sa tranquillité.
L’ancien volume est conservé, un second vient s’y accoler, comme son reflet prolongé jusqu’à la rue des Remparts, atténuant au passage le pignon trop affirmé de la maison voisine – la villa «Petit Jean» au 15, rue des Remparts.
Le mur reste, solide, mais son angle s’illumine : une fenêtre conservée, puis réinterprétée, se couronne d’un fronton contemporain, surmonté d’un cartouche d’appellation – La Rose des Sables. Le bois blanc de l’extension répond à la maçonnerie rose, et un vert-bleu emprunté au jardin glisse sur les balcons et la pergola.
En combinant solidité et légèreté, héritage et renouveau, le projet compose un lieu apaisé : un coin de verdure protégé, discret, qui apporte une bouffée d’air à ce quartier dense.
Cabinet Pierre ESPOT – 2, rue des Buanderie – espot-pierre@outlook.com
La rue des Remparts : une belle Histoire
Pendant l’entre-deux-guerres, la rue fut en grande partie construite par M. Guilbaud, maçon et entrepreneur, arrière-grand-père de l’actuel propriétaire. On suppose que la parcelle actuelle — la plus vaste de l’îlot — accueillait alors le local professionnel de l’entrepreneur, et peut-être également son domicile.
Retrouvez cet article dans la newsletter de novembre 2025.
